Тверь 1,1ПН в Вешках
Данная модель имеет следующие конфигурации:
Тверь 1,1П (стандартная)
Тверь 1,1ПН (С насосом)
Тверь 1,1ПМ (удлиненная)
Тверь 1,1ПНМ (удлиненная с насосом)
В наличии
Цена:
202 100 ₽
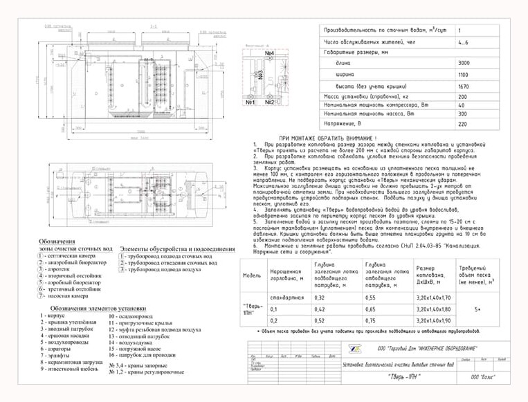
Технические характеристики Тверь 1,1ПН:
- Количество пользователей: 7 человек
- Залповый сброс: 330 л
- Объём переработки: 1.1 м3/сут
- Насос для откачки: есть
- Глубина залегания подводящей трубы: до 30 см
- ДхШхВ: 2.9х1.1х1.67 м
- Способ отвода: принудительный
- Вес: 180 кг
- Проживание: сезонное, постоянное
- Преимущества: Премиум
- Наличие: на складе, доставка сегодня
- человек x7
- краны x3
- туалеты x2
- души/ванны x2
Особенности
Модификации Тверь 1,1ПН
| Характеристики | Тверь 1,1П | Тверь 1,1ПН | Тверь 1,1ПМ | Тверь 1,1ПНМ |
|---|---|---|---|---|
| Глубина залегания подводящей трубы | 30 см | 30 см | 60 см | 60 см |
| Тип сброса | самотечный | принудительный | самотечный | принудительный |
| Размеры | 2.5 x 1.1 x 1.67 м | 2.9 x 1.1 x 1.67 м | 2.5 x 1.1 x 1.97 м | 2.9 x 1.1 x 1.97 м |
| Цена септика | 185 300 руб. | 202 100 руб. | 212 900 руб. | 230 800 руб. |
| Цена под ключ |
Модельный ряд
Монтажные схемы Тверь 1,1ПН
Способы водоотведения
Документация
Отзывы о нас на Яндекс
Магнум Траст
5,0
77 оценок
Похожие товары:









